Page 26 - ALLOY Technical Detail V.2024_A4
        P. 26
        
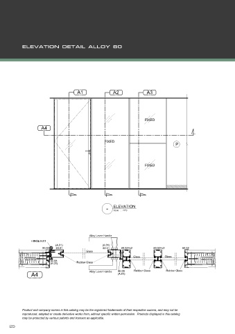
                                        A1                A2               A3
                                                                          FIXED
                      A4
                                                      FIXED
                                                                                          P
                                                                          FIXED
                                                       -  ELEVATION
                                                           Scale    :   NTS
                                              Alloy Lever Handle
                 HINGE H.01
                             (A.01)                  (A.01)
                       80.02  60.01                  60.01    80.03=x2         80.03=x2      80.02
                                             Glass
                                                                     Glass          Glass
              ROCKWOOL                                                                                 ROCKWOOL
              INSULATION                                                                               INSULATION
                           80.08        Rubber Glass
                           (A.01)
                                                             80.08
                 A4                           Alloy Lever Handle  (A.01)  Rubber Glass   Rubber Glass





