Page 28 - ALLOY Technical Detail V.2024_A4
        P. 28
        
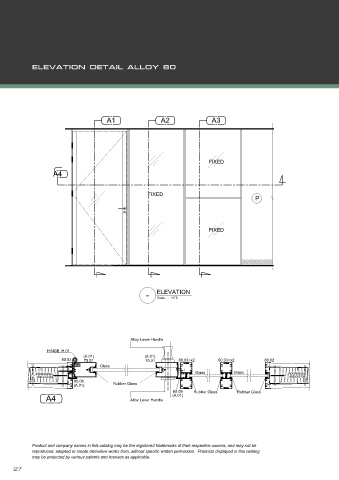
                                       A1                 A2               A3
                                                                          FIXED
                    A4
                                                     FIXED
                                                                                           P
                                                                          FIXED
                                                    -   ELEVATION
                                                        Scale    :   NTS
                                               Alloy Lever Handle
                  HINGE  H.01
                              (A.01)                (A.01)
                       80.02  70.01                 70.01       80.03=x2      80.03=x2        80.02
                                    Glass
              ROCKWOOL                                                Glass        Glass              ROCKWOOL
              INSULATION                                                                               INSULATION
                           80.09
                           (A.01)        Rubber Glass
                                                              80.09  Rubber Glass   Rubber Glass
                 A4                            Alloy Lever Handle  (A.01)





