Page 29 - ALLOY Technical Detail V.2024_A4
        P. 29
                                                       
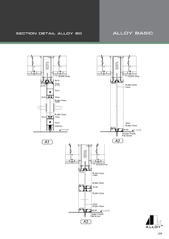
                                  ROCKWOOL  INSULATION                             ROCKWOOL  INSULATION
                                          CEILING LEVEL                                    CEILING LEVEL
                                        80.02
                              80.09     70.06                                   80.02
                              (A.01)    (A.01)                                           Rubber Glass
                                                                                         Glass
                                        70.04
                              70.02     70.02
                                        Rubber Glass
                                        Glass
                                        Rubber Glass
                              70.02     70.02
                                        70.04                                            Glass
                                        (DS200 )                                         Rubber Glass
                                                                               80.05
                                                                                        80.06
                                                                                       Packer Plactic
                                                                                       Flat Screw
                                 A1                                               A2
                                                             ROCKWOOL  INSULATION
                                                                     CEILING LEVEL
                                                         80.02
                                                                  Rubber Glass
                                                                  Glass
                                                                  Rubber Glass
                                                         80.16
                                                                  80.06
                                                                  Rubber Glass
                                                                  Glass
                                                                  Rubber Glass
                                                         80.05
                                                                  80.06
                                                                 Packer Plactic
                                                                 Flat Screw
                                                            A3





