Page 30 - ALLOY Technical Detail V.2024_A4
        P. 30
        
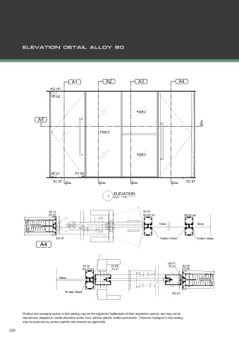
                                     A1               A2              A3                  A4
                          AG-141
                           PF-02
                                                                     FIXED
                    A5
                                                   FIXED
                                                                     FIXED
                           PF-01      PF-03
                           DC.07                                                              DC.07
                                                       -  ELEVATION
                                                          Scale    :   NTS
                         80.10                                          80.10
                         80.02                                          80.03=x2             80.03=x2
                                                                                Glass              Glass
                ROCKWOOL
                 INSULATION
                             DC.07                                               Rubber Glass      Rubber Glass
                     A4
                                                                                     (A.01)
                                          80.10         (A.01)                       70.01  80.10
                                          80.03=x2       70.01                              80.02
                              Glass                                                                 ROCKWOOL
                                                                                                    INSULATION
                                  Rubber Glass
                                                                                       DC.07





