Page 1305 - Workshop Manual - Aumark (BJ1051)
P. 1305
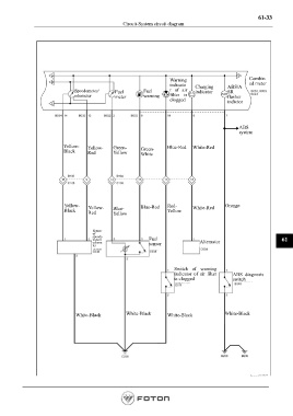
61-33
Circuit-System circuit diagram
Warning Combin
indicato Charging ABS/A ed meter
Speedometer/ Fuel Fuel r of air indicator SR
odometer meter warning filter is flasher
clogged indictor
ABS
system
Yellow- Yellow- Green- Blue-Red White-Red
Black Red Yellow Green-
White
Yellow- Yellow- Blue-Red Red- White-Red Orange
Black Red Blue- Yellow
Yellow
Sensor
of
speedo
meter/ Fuel 61
odome sensor Alternator
ter
Switch of warning
indicator of air filter ABS diagnosis
is clogged switch
White-Black White-Black White-Black White-Black
Page 1305

