Page 361 - Workshop Manual - Aumark (BJ1051)
P. 361
04-217
Diagnosis- illumination
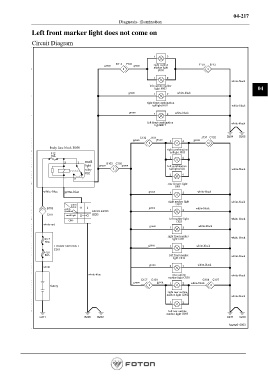
Left front marker light does not come on
Circuit Diagram
green green right outline
marker light
F004
white-black
left outline marker
light F003 04
green white-black
right front combination
taillight B011 white-black
green white-black
left front combination white-black
lightB017
green green green
body fuse block B050
right combination
taillight J005
small
light green green left combination
relay taillight J002 white-black
rear licence light
J003
white-blue green-blue green white-black
right marker light white-black
conn C024
ector green
switch white-black
(position) cubicle switch
small light
left marker light white-black
C025
white-red
green white-black
right front marker white-black
light C021
1 chassis fuse block 1 green white-black
left front marker white-black
light C036
green white-black
white
white-blue rear outline white-black
marker light C030
green green white-black
battery
right rear outline
marker light G002 white-black
left rear outline
marker light G003
Page 361

