Page 156 - เขียนแบบวิศวกรรม
P. 156

155

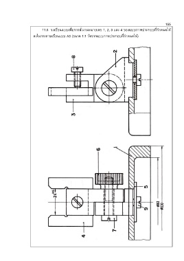
                            11.8  จงเขียนแบบเพื่อการสั่งงานหมายเลข 1, 2, 3 และ 4 ของแบบภาพประกอบที่ก าหนดให้

                       ลงในกระดาษเขียนแบบ A3 (ขนาด 1:1 วัดจากแบบภาพประกอบที่ก าหนดให้)
   151   152   153   154   155   156   157   158   159   160   161