Page 151 - เขียนแบบวิศวกรรม
P. 151

150

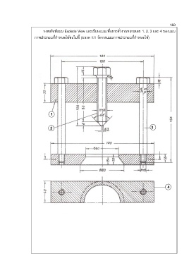
                              จงสเก๊ตช์แบบ Explode View และเขียนแบบเพื่อการสั่งงานหมายเลข 1, 2, 3 และ 4 ของแบบ
                         ภาพประกอบที่ก าหนดให้ต่อไปนี้ (ขนาด 1:1 วัดจากแบบภาพประกอบที่ก าหนดให้)

















                                 1


                                 2                                                              3












                                                                                                           4
   146   147   148   149   150   151   152   153   154   155   156