Page 36 - ALLOY Technical Detail V.2024_A4
P. 36

   









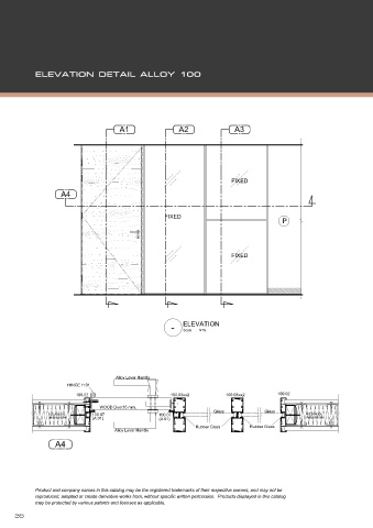
                                       A1                 A2                A3








                                                                           FIXED

                    A4


                                                      FIXED
                                                                                           P





                                                                           FIXED












                                                        -  ELEVATION
                                                           Scale    :   NTS








                                      Alloy Lever Handle
                       HINGE H.01
                         100.02                        100.03=x2         100.03=x2        100.02

                                 WOOD Door35 mm.
                                                                     Glass           Glass
                 ROCKWOOL     100.07                100.07                                         ROCKWOOL
                 INSULATION   (A.01)                (A.01)                                         INSULATION
                                                               Rubber Glass      Rubber Glass
                                      Alloy Lever Handle
                   A4
   31   32   33   34   35   36   37   38   39   40   41