Page 37 - ALLOY Technical Detail V.2024_A4
        P. 37
                                                      
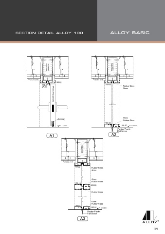
                                   ROCKWOOL  INSULATION                           ROCKWOOL  INSULATION
                       CEILING LEVEL                                 CEILING LEVEL
                                         100.02
                               100.07                                        100.02
                                        WOOD Door35 mm.
                                (A.01)                                                    Rubber Glass
                                                                                          Glass
                                                                                          Glass
                                           (DS200 )
                                                                                          Rubber Glass
                                                                             100.05
                                                                                        100.06
                                                                                      Packer Plactic
                                                                                      Flat Screw
                                     A1                                          A2
                                                            ROCKWOOL  INSULATION
                                               CEILING LEVEL
                                                       100.02
                                                                   Rubber Glass
                                                                   Glass
                                                                   Glass
                                                                   Rubber Glass
                                                       100.14
                                                                  100.06
                                                                   Rubber Glass
                                                                   Glass
                                                                   Rubber Glass
                                                       100.05
                                                                   100.06
                                                                Packer Plactic
                                                                Flat Screw
                                                           A3





