Page 39 - ALLOY Technical Detail V.2024_A4
        P. 39
                                                      
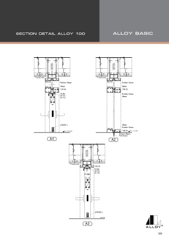
                                     ROCKWOOL  INSULATION                        ROCKWOOL  INSULATION
                           CEILING LEVEL                              CEILING LEVEL
                                 100.02    Rubber Glass                     100.02     Rubber Glass
                                 100.14    Glass                            100.14     Glass
                                           100.06                                      100.06
                                           40.0A                                       Rubber Glass
                                           (A.01)                                      Glass
                                           (A.14)
                                           (DS200 )                                    Glass
                                                                                       Rubber Glass
                                                                            100.05
                                                                                       100.06
                                                                                     Packer Plactic
                                                                                     Flat Screw
                                    A1                                          A2
                                                              ROCKWOOL  INSULATION
                                                   CEILING LEVEL
                                                                    100.02
                                                                    40.0A
                                                                    (A.01)
                                                                    (A.14)
                                                             FIXED
                                                                    (DS200 )
                                                             A3





