Page 43 - ALLOY Technical Detail V.2024_A4
P. 43
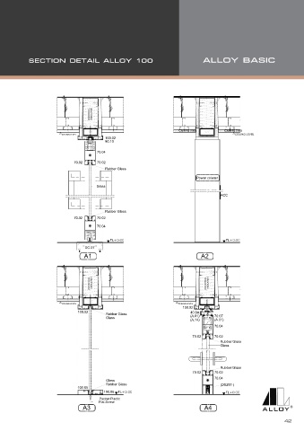
ROCKWOOL INSULATION
Ceiling tiles Ceiling tiles
CEILING LEVEL CEILING LEVEL
100.02
80.10
70.04
70.02 70.02
Rubber Glass
Power column
Glass
ACC
Rubber Glass
70.02 70.02
70.04
DC.07
A1 A2
ROCKWOOL INSULATION ROCKWOOL INSULATION
CEILING LEVEL CEILING LEVEL
100.02
100.02 40.0A
Rubber Glass (A.01)
Glass 70.07
(A.14) (A.01)
70.04
70.02 70.02
Rubber Glass
Glass
Rubber Glass
70.02 70.02
70.04
Glass
Rubber Glass (DS200 )
100.05
100.06
Packer Plactic
Flat Screw
A3 A4

