Page 45 - ALLOY Technical Detail V.2024_A4
P. 45
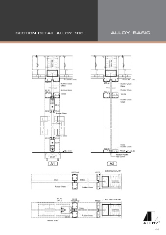
ROCKWOOL INSULATION ROCKWOOL INSULATION
CEILING LEVEL CEILING LEVEL
100.02 100.02
Rubber Glass Rubber Glass
Glass Glass
80.10 Rubber Glass Rubber Glass
100.14 100.14
100.06 100.06
Rubber Glass
Glass
60.04
60.02 60.02
Rubber Glass
Glass
Rubber Glass
60.02 60.02
60.04
Glass
Rubber Glass
100.05
100.06
Packer Plactic
DC.07 Flat Screw
A1 A2
SILICONE SEALANT
100.03=x2 100.02
Glass Glass
ROCKWOOL
INSULATION
Rubber Glass Rubber Glass
60.01 80.10 SILICONE SEALANT
(A.01) 100.03=x2 100.02
Glass
ROCKWOOL
INSULATION
Rubber Glass
DC-07
Rubber Glass

