Page 42 - ALLOY Technical Detail V.2024_A4
P. 42
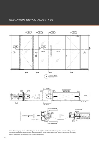
A1 A2 A3 A4
SILICONE SEALANT FIXED
A5 A5
FIXED
P ACC P
- ELEVATION
Scale : NTS
Pull Handle
80.10 70.01 70.01 80.10 Power column
100.02 (A.01) (A.01) 100.02 (250,300 mm.) 100.02
Glass
ROCKWOOL
INSULATION
DC-07 ACC
A5 Rubber Glass
Pull Handle
Alloy Lever Handle
HINGE H.02P
100.03=x2 100.02
70.01 70.01
(A.01) (A.01)
SILICONE SEALANT Glass Glass
ROCKWOOL
INSULATION
40.0A Rubber Glass 40.0A
Rubber Glass (A.01) (A.01)
(A.14) (A.14)
Alloy Lever Handle

