Page 38 - ALLOY Technical Detail V.2024_A4
        P. 38
        
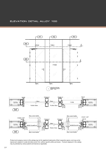
                                            A1              A2                     A3
                             A4
                                        FIXED             FIXED              FIXED
                             A5
                                                            FIXED
                                                       -  ELEVATION
                                                          Scale    :   NTS
                         100.02                   100.03=x2       100.03=x2                 100.02
                                          Glass          Glass
                ROCKWOOL                                                        FIXED               ROCKWOOL
                INSULATION                                                                          INSULATION
                                   Rubber Glass          Rubber Glass   40.0A            40.0A
                                                                       (A.01)            (A.01)
                                                                       (A.14)            (A.14)
                 A4
                                  Alloy Lever Handle                        Alloy Lever Handle
                    HINGE H.02P                                                             HINGE H.02P
                        100.02                    100.03=x2      100.03=x2                   100.02
                                                         Glass
                ROCKWOOL                                                                            ROCKWOOL
                INSULATION     WOOD Door45 mm.                                  WOOD Door45 mm.     INSULATION
                            40.0A               40.0A                  40.0A             40.0A
                            (A.01)              (A.01)   Rubber Glass   (A.01)           (A.01)
                            (A.14)              (A.14)                (A.14)             (A.14)
                 A5               Alloy Lever Handle                        Alloy Lever Handle





