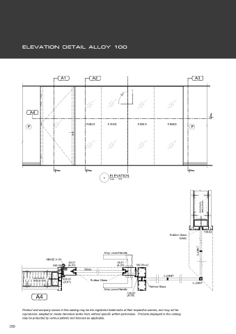
Page 40 - ALLOY Technical Detail V.2024_A4
        P. 40
        
                                A1              A2                                                 A3
                A4
                                            FIXED      FIXED           FIXED          FIXED
               P                                                                                 P
                                                     -  ELEVATION
                                                        Scale    :   NTS
                                                                                                      ROCKWOOL  INSULATION
                                                                                                        100.02
                                                                                       Rubber Glass
                                                                                           Glass
                                                                                                     I-JOINT
                                                      Alloy Lever Handle
                        HINGE H.01
                                    60.01                   60.01
                            100.02  (A.01)                  (A.01)   100.03=x2
                                            Glass
                                                                                    I-JOINT
                  ROCKWOOL       100.07
                  INSULATION                   Rubber Glass
                                 (A.01)                                                           I-JOINT
                                                                            Rubber Glass
                                                      Alloy Lever Handle
                                                                 100.07
                   A4                                            (A.01)





