Page 44 - ALLOY Technical Detail V.2024_A4
P. 44
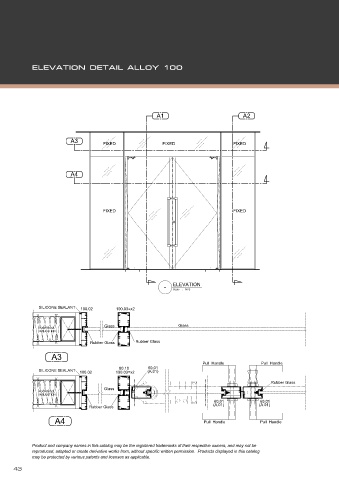
A1 A2
A3 FIXED FIXED FIXED
A4
FIXED FIXED
- ELEVATION
Scale : NTS
SILICONE SEALANT 100.02 100.03=x2
Glass Glass
ROCKWOOL
INSULATION
Rubber Glass Rubber Glass
A3
Pull Handle Pull Handle
80.10 60.01
SILICONE SEALANT 100.02 100.03=x2 (A.01)
Rubber Glass
Glass
ROCKWOOL
INSULATION
60.01 60.01
(A.01) (A.01)
Rubber Glass
A4 Pull Handle Pull Handle

