Page 11 - 2020 7th St Presentation
P. 11
L:\21-133 Toscana 2020 7th St S\ALD-Dwgs\21-133.dwg, 9/12/2021 10:27:32 PM, AutoCAD PDF (General Documentation).pc3
L:\21-133 Toscana 2020 7th St S\ALD-Dwgs\21-133.dwg, Plotted on 9/12/2021 10:27:33 PM by Christian Andrea
2.1' Fire Table
(Granite Table Top, Cladding TBD)
LANDSCAPE ARCHITECTURE
2780 S. Horseshoe Drive Suite 5
Naples, FL 34104
(239) 430-1661
CBS Retaining Wall
(stucco clad to match building) Design@ALDinc.net
License LC26000259
(2)2" (1)6" Sleeves
Christian Andrea
9'
3'-0" PLATTED LOT LINE
CBS Retaining Wall
L1
(stucco clad to match building)
SEAWALL CAP
(9) Steps
2.1' (12" Treads, 6" Risers) Auto Re-Fill 7'-6"
Hand Rail 7'-6" Dedicated Overflow
4'-6" AD AD License No. 1178
1.2' WIDE CONCRETE
AD
Planter Copyright Architectural Land Design ©
6'-0" Planter 5'-6" 3'-6" 5'-6" Planter 6'-0"
AD
CB AD
Planter VANISHING EDGE CB
7'-6" WS: 7'-1.5" 7'-6" 7'-6" 2.3' PILE (TYPICAL)
7'-6"
CBS Retaining Wall WOOD MOORING
(stucco clad to match building)
Pool Main Drains
6' Water Depth (3' min sep, qty by code) Light WOOD DOCK
CHAISE SHELF
POOL DECK (6" water depth)
5' Water Depth Planter
Planter Bench Light Planter
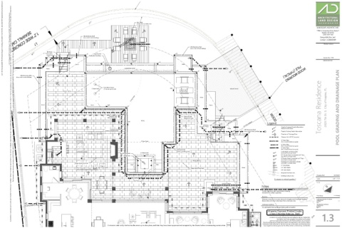
7'-6" 7'-6" 7'-6" 7'-6" Toscana Residence 2020 7th St. S. City of Naples, FL POOL GRADING AND DRAINAGE PLAN
3'-0"
authorization. Any deviations or inaccuracies need to be brought to the attention of the Owner immediately. * All base information has been provided by others, verification of setbacks, property lines, etc. need to be provided by others. * It is the Contractors responsibility to verify that he has the most current plan. * Contractor shall not scale from plan, use dimensions only. * These plans are the property of Architectural Land Design and may not be used or reproduced without This Document contains information proprietory to ARCHITECTURAL LAND DESIGN and no part of this drawing shall be reproduced or disclosed to others or used for any purpose other than that for which it was furnished, without prior written permission from ARCHITECTURAL LAND DESIGN. CB
Skimmer with
Stone Lid Cover Skimmer with
Stone Lid Cover
6'-0"
POOL
Light 25' Rear Setback WOOD DOCK
Legend:
4'-6" 15' Pool Setback Legend:
(9) Steps
(12" Treads, 6" Risers) Depicts Proposed Grade Information
Planter 100'-0" (Reflects Finished Grade)
Channel Drain Planter
Planter CBS Retaining Wall
(Connect to Stormwater System) AD AD (stucco clad to match building) CB 100.0' Depicts Existing Grade Information
7'-5" 6'-0" Direction of Drainage Flow
AD
AD AD 6'-0" Sleeves, Sch. 40 PVC (see plans)
CB Planter
6'-0"
4' Water Depth 4" Drain Pipe
7'-6" 7'-5" (PVC or Smooth Walled Corrugated)
6" Drain Pipe
(PVC or Smooth Walled Corrugated)
8" Drain Pipe
Channel Drain (PVC or Smooth Walled Corrugated)
(Connect to Stormwater System)
OUTDOOR LIVING AD Catch Basin w/ Atrium grate
Spa Drains/Vents 3.5' Water Depth (See Detail 'A' on Details Sheet)
Light 10" Round Grate Connected to 8" Pipe
(5) Spa Jets CB10
7'-7" (See Detail 'B' on Details Sheet)
CB8 8" Round Grate Connected to 6" Pipe
(See Detail 'B' on Details Sheet)
POOL DECK
SPA DS Downspout Connected to Gutter
1
Slope deck " per foot. (See Detail 'C' on Details Sheet)
8
Steps Steps
CB DS CB9 9" Catch Basin
1
Slope deck " per foot. Planter CB12 12" Catch Basin
8
CB18 18" Catch Basin
7'-6" 7'-6" 0' Proposed Contour Line
1' Drawing Date: IS 07.09.21
7'-8" Existing Contour Line
Spa Controls
Contractor to verify all quantities. Scale: 1/4" = 1'-0"
Spa Step
21-133
(2)2" (1)6" Sleeves
13'
Notes
Planter
AD 7'-5" AD CB
6'-0" Confirm selections with owner before ordering.
Contractor to confirm quantities.
7'-8" Sleeving File Name: 21-133.dwg
All planter areas are to receive sleeves for irrigation and landscape lighting. Architectural Information Provided By:
Sleeve sizes are to be 2 sizes larger than actual pipe size. Company Name: ----
File Name: ----
Date: ----
CB DS Site Information Provided By:
7'-6" Side Setback Landscape Lighting Company Name: ----
File Name: ----
It is anticipated that Landscape lighting will be installed. Date: ----
All grades Represent Finished Grades
Unless Otherwise Noted (ie. 'Slab')
4.1' 2.8'
Contractor to verify property lines and setbacks before construction. 1.3
Contractor must have property lines staked and located,
8'-0" and must verify plan dimensions and field conditions are consistent.
Any Inconsistencies w/ these plans need to be reported to ALD and the Owner.
Contractor shall verify that he has the most up to date plans, and that they have
Contractor shall verify that he has the most up to date plans, and that they have been approved and accepted by the Owner before commencing construction. JANDY 3-WAY NEVER LUBE JANDY 3-WAY NEVER LUBE been approved and accepted by the Owner before commencing construction.

