Page 78 - เขียนแบบวิศวกรรม
P. 78

78

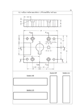
                              5.2  จงเขียนภาพตัดตามแนวตัดต่าง ๆ ที่ก าหนดให้ในภาพด้านบน
































                                                                              Section E-F         Section G-J

                                          Section A-B







                                          Section C-D
   73   74   75   76   77   78   79   80   81   82   83