Page 1042 - 2006 HARLEY FLSTCI SERVICE MANUAL
P. 1042
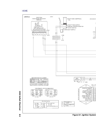
SPEEDOMETER STARTER BK BK RED BAND BATTERY [128B] [128A] BK [39A] TRIP RETURN TRIP SOURCE GROUND ACCESSORY BATTERY SECURITY LP SERIAL DATA IGNITION 8910 1112 7 123456 [39B] BK 70044-96 BN/GY LGN/V COPPER R STUD [5] CIRCUIT [64B] IGNITION 15A BREAKER H G GY R/BK 30 AMP IGNITION A R SWITCH B R/BK (REAR VIEW) I 15A BATTERY J I [33A] [33B] R BN/GY R/W V/W BK/W BK BK GY BK LGN/V [10B] [10A] Y/BE W/BK BE/O [83B] [91A] BK 1 2 3 1 2 3 4 3 W/BK 1 1 2 1 BN/GY 2 2 DATA 1 2 3 LINK R/W 3 3 [83A] [GND1&2] BK/W 4 4 IGNITION
[80B] RUN/STOP SIGNAL BATTERY +5V SENSOR PWR SENSOR GROUND MODULE GROUND COIL FRONT COIL REAR CRANK SENSOR (+) CRANK SENSOR (-) VEHICLE SPD SIG MAP SIGNAL SERIAL DATA
C C B B A A
RIGHT HAND CONTROLS, [ 162 ] RIGHT TURN SWITCH ENGINE STOP/RUN SWITCH START SWITCH STOPLIGHT SWITCH MAP SENSOR [80A] IGNITION CONTROL MODULE SOCKET CONNECTOR
[22B] [22A] PIN CONNECTOR (A side) (B side)
1 1
2 2
3 3 GY
GY
A G M
4 4 W/BK
W/BK
5 5 SPARE 15A EMPTY EMPTY
6 6 B H O
sd0043 C I R Q P TOP VIEW LT.GN - Light Green Wire color-XX/XX-Stripe color
[30A] 1 2 [30B] GY BN/GY RED/GRAY COMPONENTS LOCATED UNDER SEAT START RELAY E K S T U Wire Color Code Key PK - Pink TN - Tan
TURN SIGNAL/SECURITY RIGHT TURN SWITCH INPUT 7 9 8 10 POSITION RED/BLACK P&A ACC C D BATTERY I J 15A ACCESSORIES P R 15A TOP VIEW BK - Black BN - Brown R - Red O - Orange Y - Yellow
BATTERY
IGNITION
SERIAL DATA
TSM/TSSM MODULE SECURITY INDICATOR 3 5 4 6 LGN/V IGNITION SWITCH LEGEND RED DOT INDICATES CONTINUITY WITH RED WIRE IN SWITCH POSITION INDICATED INSTRUMENTS A B 15A IGNITION G H 15A LIGHTS M O 15A GN - Green BE - Blue V - Violet GY - Gray W - White
LEFT TURN FEED
RIGHT TURN FEED
LEFT TURN SWITCH INPUT
START RELAY CONTROL
IGNITION ENABLE SIGNAL
GROUND
ALARM SIGNAL 11 12 BK SWITCH OFF ACC. IGNITION EMPTY E F EMPTY K L HEADLAMP S U 15A
HOME sd0043xxx
2006 Softail: Electrical 8-5

