Page 1286 - Workshop Manual - Aumark (BJ1051)
P. 1286
61-14
Circuit-Guide to circuit
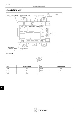
Chassis fuse box 1
Relay, speed
Relay, exhaust brake Relay, diesel filter Relay, diesel filter adjustment of
condenser
Main relay,
condenser blowe Relay, starting;
Fuse cutout
S/N Rated current S/N Rated current
F/L0 80A F/L3 60A
F/L1 50A F/L4 40A
F/L2 50A
61
Page 1286

