Page 1322 - Workshop Manual - Aumark (BJ1051)
P. 1322
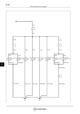
61-50
Circuit-System circuit diagram
Green
Green
Green Green
Green Green Green Green Green Green
Green Green Green Green
Left rear Right rear Left front Right front Left rear Right rear Left rear Right rear
clearance lamp clearance lamp combined lamp
marker marker marker marker combined lamp
White-Black White-Black White-Black
White-Black
61
White-Black
White-Black White-Black White-Black
White-Black White-Black White-Black
Page 1322

