Page 1338 - Workshop Manual - Aumark (BJ1051)
P. 1338
61-66
Circuit-System circuit diagram
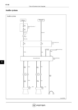
Audio system
Audio system
Battery Ignition switch
ACC/ON
Chassis fuse box 1
White-Blue Blue-Red
White-Blue
Vehicle body fuse box
Antenna Inside small lamp
of radio
Yellow Gray Green
Radio/cassette player
Radio/cassette player
61
Green- Green Blue- Blue
Black Black
White-
Black
Green
Green- Blue- Blue
Black Black
Left front Right front
speaker speaker
Page 1338

